ATELIER

SELEZIONE PROGETTI

CONTATTI

Italiano

English

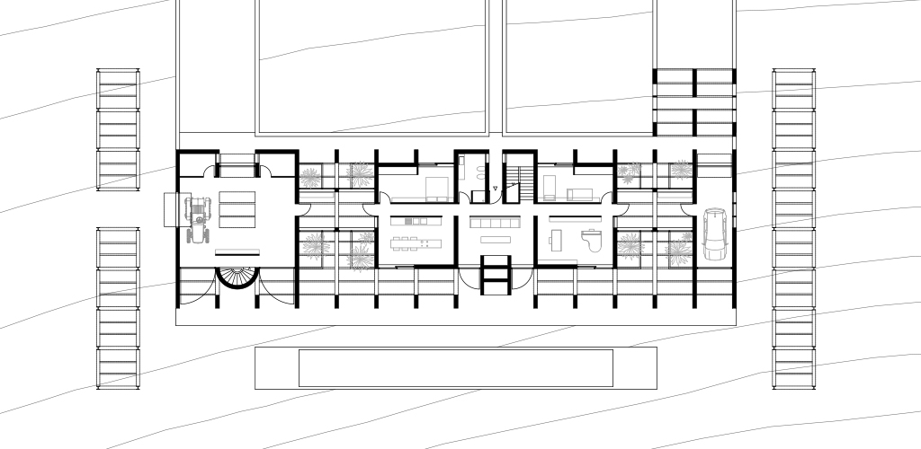
Casa in campagna

Progetto/ Il terreno si trova sulle colline che salgono dalla pianura  verso gli Appennini: un luogo, da cui la vista abbraccia la Via Emilia e spazia in direzione del Po. La composizione è regolata da una serie di setti portanti paralleli, che scandiscono lo spazio, cogliendo in successione diverse porzioni di paesaggio.

 

L’ordine spaziale si sussegue dall’interno all’esterno, creando fluidità visiva tra gli ambienti di vita. Un lungo percorso perpendicolare alle lastre strutturali collega tra  loro l’autorimessa, le serre, le camere da letto, il soggiorno, la cucina ed uno spazio di lavoro e ricovero attrezzi.

 

Il fronte strada è delimitato da lastre murarie alte due piani, tagliate dalle aperture delle camere e dell'ingresso centrale; in una delle torri a fianco dell’ingresso è contenuto il vano scala, che porta alla seconda abitazione ed alla copertura praticabile. Ai fianchi della casa, due lunghe serie di vigneti segnano il confine  della proprietà.

 

Documento senza titolo
Anno 1996
luogo Noceto, Parma
committente Privato
fase di progetto Definitivo
FUNZIONI

Residenziale

QUOTA TERRENO + 160 ml
SUPERFICIE TERRENO 8.000 mq
superficie edificio 377 mq
VOLUME totale 1.131 mc
strutture verticali Murature in laterizio
strutture orizzontali Laterocemento
rivestimenti Listelli in cotto
pavimenti Cotto
infissi Legno
Progetto AAMM
collaboratori Giuliana Rebecchi

 P.IVA 05923890486   All right reserved©AAMM2013

info@aamm.it