<
>
Casa in collina
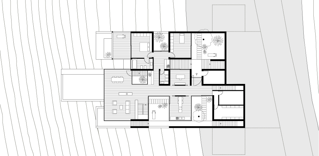
Progetto/ La casa si trova su una collina in forte pendenza, prossima al centro abitato, vi si arriva attraverso un crinale. Gli spazi abitativi si trovano tutti al di sotto del livello stradale, l’unico ambiente costruito al di sopra è il garage, inglobato da un pergolato che consente l’accesso alla copertura-giardino.
Dalla copertura si scende agli ambienti domestici, ognuno dei quali affaccia su un patio, che amplifica lo spazio interno e consente l’ingresso della luce dall’alto. Le zone giorno e notte sono separate da un sistema di rampe, che attraversano la casa in tutta la sua profondità. Le due aree sono nettamente differenziate: le stanze per la notte sono appartate e distanziate tra loro, mentre gli spazi a giorno sono totalmente integrati in una sistema di pareti vetrate, che avvolgono le singole zone funzionali; il volume del soggiorno è completamente aperto e sospeso sulla piscina, per abbracciare il profilo delle colline.
| ANNO | 2000 |
| luogo | Salsomaggiore Terme, Parma |
| committente | Privato |
| fase di progetto | Definitivo |
| FUNZIONI | Residenziale |
| QUOTA TERRENO | + 175 ml |
| SUPERFICIE TERRENO | 2.500 mq |
| superficie edificio | 250 mq |
| VOLUME totale | 980 mc |
| strutture verticali | Cemento armato |
| strutture orizzontali | Acciaio, laterizio armato |
| rivestimenti | Cotto |
| pavimentazioni | Cotto, legno |
| serramenti | Metallo |
| Progetto | AAMM |
| collaboratori | Alessio Lotti, Giuliana Rebecchi |
P.IVA 05923890486 All right reserved©AAMM2013
info@aamm.it